Apply Online
About
Apartments
Photos
Amenities
Contact
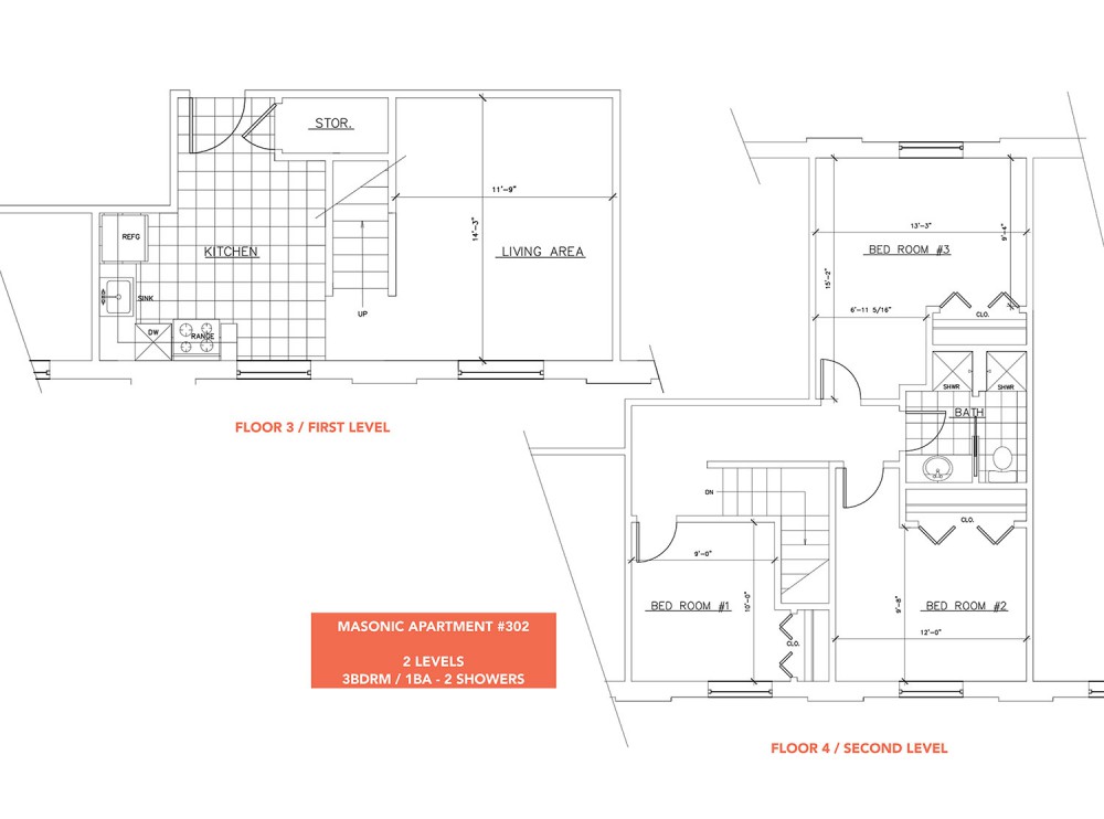
Unit 302
Unavailable for 2026-2027 - Already Leased
Bed/Bath: 3BD/1BA - 2 Showers
Contact Us to Inquire
Interested in this unit?
Fill out the contact form below.
Top